6,38 kr
5,11 kr
0,10 kr
0,08 kr
Løbekat 89x100 mm til skinne 6V.089 skydeport 8 ruller af stål
produkt utilgængeligt
tilføj til ønskeliste
Beskrivelse
Løbevogn med 8 ruller, svingbar til skydeport – stålruller
Svingbar løbevogn med 8 ruller er et robust styreelement til skinnebårne skydeporte, kompatibelt med skinne 6V.089. Den centrale flerpladestruktur sikrer øget bæreevne og driftsstabilitet, mens stålrullerne garanterer jævn portfløjsføring i mange år.

Produktets vigtigste egenskaber
- Type: svingbar løbevogn
- Antal ruller: 8
- Rullemateriale: stål
- Kompatibilitet: skinne 6V.089
- Konstruktion: flerpladestruktur (øget styrke)
- Monteringsplade med huller: 4× M16
- Vægt: 11,3 kg
- Højde (H): 169 mm

Holdbarhed og pålidelighed i mange år
Løbevognen udmærker sig ved høj modstandsdygtighed over for mekaniske belastninger og dynamiske påvirkninger. Det centrale flerpladelement reducerer deformationer under høj belastning, hvilket sikrer stabil styring selv af tunge portfløje. Stålruller monteret på lejer giver stille og jævn drift, minimerer rullemodstand og reducerer behovet for vedligeholdelse. Den svingbare konstruktion kompenserer for eventuelle aksiale afvigelser i skinnen og beskytter rullerne mod ujævnt slid.


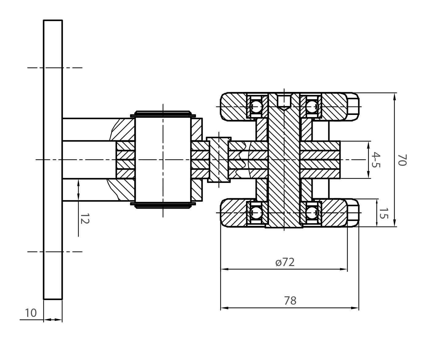
Ydre mål

Den tekniske tegning viser løbevognens vigtigste mål, som giver mulighed for præcis planlægning af monteringen i portkabinettet:
- Bundpladedimensioner: 150 × 300 mm
- Monteringshulafstand: 100 × 250 mm
- Monteringshuller: 4× M16
- Kantafstand for huller: 35 mm
- Samlet bredde med ruller: 171 mm
- Samlet højde (sidevisning): 298 mm
- Rulleakseafstand fra bundpladens kant: 75 mm

Rulle- og tværsnitsparametre
- Rullediameter: ø72 mm
- Rullebredde: 78 mm
- Rulleenhedens højde: 70 mm
- Skinnestyrespalte: 4–5 mm
- Bundpladetykkelse: 10 mm
- Lejediameter: 12 mm
- Nedre spilrum: 15 mm
- Volumen: 5243,44 cm³
- EAN: 5903313200240
Løbevognen er en monteringsklar komponent, der efter fastgørelse til portrammen med fire M16-bolte er umiddelbart klar til brug. Takket være den solide stålkonstruktion og præcist udførte lejringer sikrer produktet mange års driftssikker anvendelse selv i intensivt benyttede industriporte.
Ładowanie tabeli porównawczej...
Ładowanie galerii...
Tekniske data
| Løbeskinne størrelse | 100x89x5 |
| Produkttype | Enkelt vogn |
| Antal ruller [szt.] | 8 |
| Vognkonstruktion | Drejelig |
| Hjulmateriale | Stål |
| Type løbesystem | Løbesystem |
Sikkerhed
Alle anmeldelser (positive og negative) vises, og antallet af anmeldelser på platformen er begrænset. Vi kontrollerer, at de er fra kunder, der har købt produktet. Du kan finde flere oplysninger på vores side Politik for tilbagemeldinger.